0
Retour

Roubaix (59100)
MAISON AMENAGEE POUR LA COLOCATION SITUEE PROCHE DU METRO ALSACE ET GARE DE ROUBAIX

Prix
du bien
281 000 €
réf : 234

01
Général

MAISON AMENAGEE POUR LA COLOCATION SITUEE PROCHE DU METRO ALSACE ET GARE DE ROUBAIX.

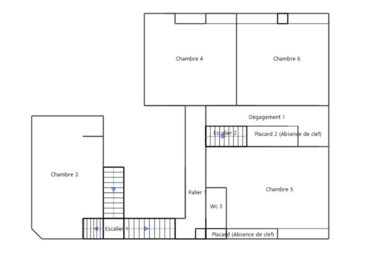
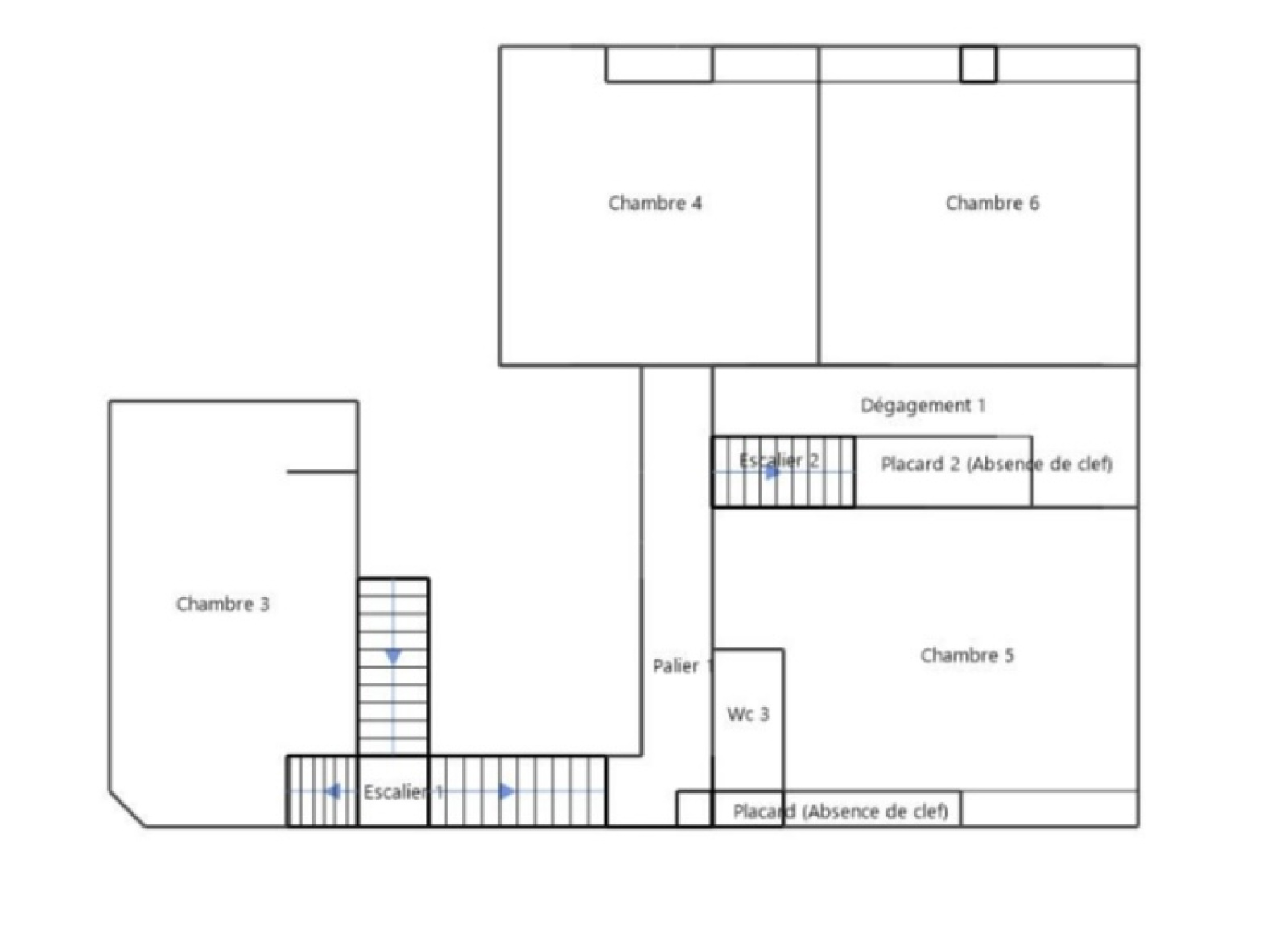
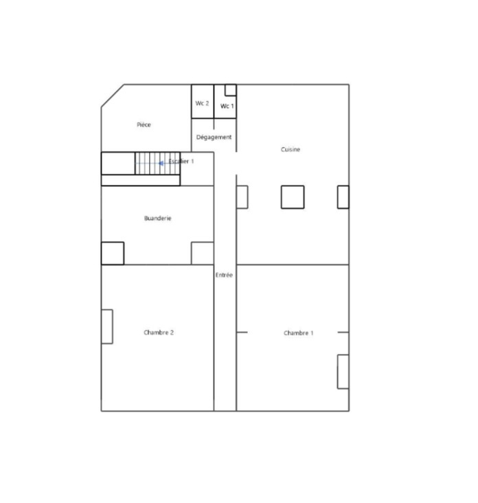
Elle est composée de 9 chambres meublées avec chacune leur douche. Une cuisine commune, une buanderie, 4 wc. Les revenus locatifs etaient de 40080€ par an hors charges. Idéalement placé (proche du centre ville et des transports).

Référence annonce : 234

Date de réalisation du diagnostic : 02/03/20256

Consommation énergie primaire : E 280

Consommation énergie finale : 122

Les informations sur les risques auxquels ce bien est exposé sont disponibles sur le site Géorisques : www.georisques.gouv.fr

Le prix indiqué comprend les honoraires à la charge de l'acheteur : 4.07% TTC du prix du bien hors honoraires

Prix hors honoraires : 270000 €

02
Plus d'infos

  • Code postal
    59100
  • Surface habitable (m²)
    209 m²
  • surface terrain
    128 m²
  • Surface loi Carrez (m²)
    209 m²
  • Nombre de chambre(s)
    9
  • Nombre de pièces
    9
  • Nombre de niveaux
    2

03
Financier

  • Prix de vente honoraires TTC inclus
    281 000 €
  • Prix de vente honoraires TTC exclus
    270 000 €
  • Honoraires TTC à la charge acquéreur
    4,07 %
  • Taxe foncière annuelle
    2 133 €

04
Plus de détails

  • Nb de salle de bains
    1
  • Nb de salle d'eau
    8
  • Cuisine
    Séparée
  • Type de cuisine
    Equipée
  • Mode de chauffage
    Electrique
  • Type de chauffage
    Radiateur
  • Format de chauffage
    Individuel
  • Terrasse
    NON
  • Murs mitoyens
    2
  • Année de construction
    1948

05
Copropriété

  • Copropriété
    NON

06
Bilan énergétique

DPE GES
Nos outils

Plus d'informations sur
le quartier

  • Commerces et santé
  • Loisirs
  • Ecoles
  • Transports
  • Pratique
Intéressé(e)
par ce bien